Skip To Content

21004 67th Street Ct E

Bonney Lake, WA 98391
  • $1,149,950
  • STATUS: Active
  • ID#: 2321714
UPDATED: 54 min ago
$1,149,950
  • 5
    BEDS
  • 0.17
    ACRES
  • 3
    BATHS
  • 0
    1/2 BATHS
  • 3,006
    SQFT
  • $383
    $/SQFT
Neighborhood:
Type:
Single-Family Home
Built:
2025
County:

School Information

Elementary School:
Middle School:
High School:
School District:
Northwest MLS logo Listing information ©2025 Northwest MLS. Listing courtesy of Berkshire Hathaway HS SSP.
Mortgage Calculator is provided by BoomTown.

Description

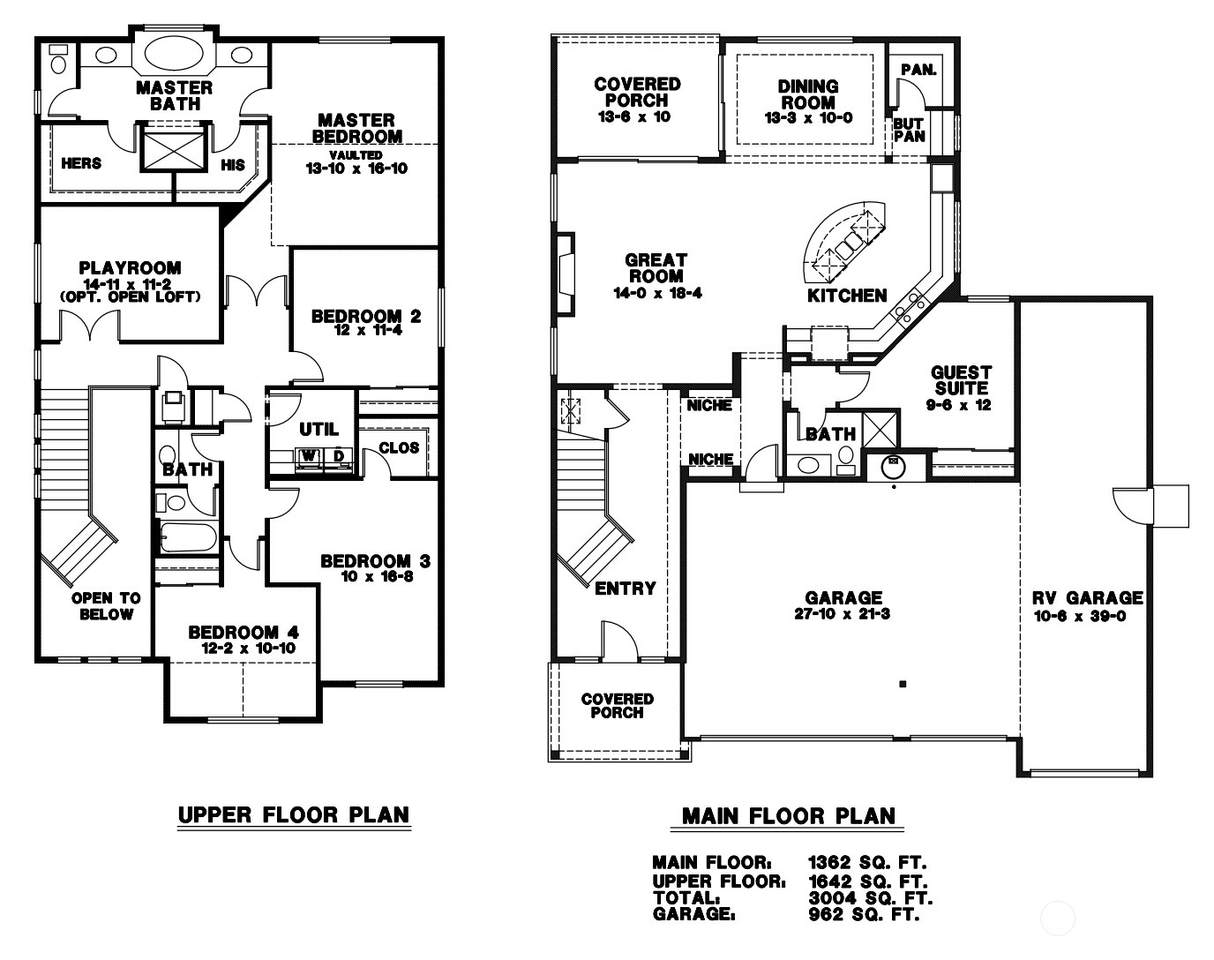
Move-in ready modern craftsman by High Country Homes in The Enclave at the Lake! Enjoy Lake Tapps recreation just minutes away. This 5-bedroom, 2.75-bath home features a grand 2-story entry, open great room w/gas fireplace & built-ins plus a main-level guest suite/office. Chef's kitchen w/quartz counters, SS appliances, 36" gas range & walk-in pantry. Custom closet systems throughout. Covered patio w/heaters open to the large fully fenced, 36' deep landscaped yard w/front & back sprinkler system. Huge 962 sq ft garage w/rare 39' RV bay w/13' x 9' ft door & 16 ft ceilings in the 4th bay for your boat, car lift, toys, etc. Loft upstairs + spa-inspired primary suite w/freestanding tub. Partial lake view, close to top schools, shopping & parks.

Monthly Payment Calculator



IDX information is provided exclusively for consumers’ personal noncommercial use, that it may not be used for any purpose other than to identify prospective properties consumers may be interested in purchasing.The listing data relating to real estate for sale on this web site comes in part from the Northwest Multiple Listing Service. Real estate listings held by brokerage firms other than NW Home Experts are marked by the "three tree" symbol; detailed information about such listings includes the names of the listing brokers. The three tree icon refers to an NWMLS listing. Data last updated 2025-11-10T14:15:00.873. The "Days on Site" data field is calculated by BoomTown and is the number of days since the listing was originally received in our system. It is not the equivalent of "Days on Market".
Based on information submitted to the MLS GRID as of 2025-11-10T14:15:00.873. All data is obtained from various sources and may not have been verified by broker or MLS GRID. Supplied Open House Information is subject to change without notice. All information should be independently reviewed and verified for accuracy. Properties may or may not be listed by the office/agent presenting the information.
www.nwhomeexperts.com/homes/159359598
Print Image

21004 67th Street Ct E Bonney Lake, WA 98391

  • Price: $1,149,950
  • Status: Active
  • On Site: Days
  • Updated: 54 min ago
  • ID#: 2321714
5
Beds
3
Baths
0
½ Baths
0.17
Acres
3,006
SQFT
$383
$/SQFT
2025
Built
Neighborhood:
Lake Tapps
County:
Pierce
Area:
109 - Lake Tapps/Bonney Lake
Elementary School:
Emerald Hills Elem
Middle School:
Lakeridge Middle
High School:
Bonney Lake High
School District:
Sumner-Bonney Lake
Property Description
Move-in ready modern craftsman by High Country Homes in The Enclave at the Lake! Enjoy Lake Tapps recreation just minutes away. This 5-bedroom, 2.75-bath home features a grand 2-story entry, open great room w/gas fireplace & built-ins plus a main-level guest suite/office. Chef's kitchen w/quartz counters, SS appliances, 36" gas range & walk-in pantry. Custom closet systems throughout. Covered patio w/heaters open to the large fully fenced, 36' deep landscaped yard w/front & back sprinkler system. Huge 962 sq ft garage w/rare 39' RV bay w/13' x 9' ft door & 16 ft ceilings in the 4th bay for your boat, car lift, toys, etc. Loft upstairs + spa-inspired primary suite w/freestanding tub. Partial lake view, close to top schools, shopping & parks.
Exterior Features

Architectural Style Northwest Contemporary Attached Garage YN Yes Carport YN No Construction Methods Standard Frame Covered Spaces 5 Entry Location Main Exterior Features Cement PlankedStoneWood Products Garage YN Yes Levels Two Lot Features Corner LotCurbsDead End StreetPavedSidewalk Open Parking YN No Parking Features Attached GarageRV Parking Parking Total 5 Roof CompositionMetal Structure Type House Style Code 12 - 2 Story Topography LevelPartial SlopeSteep Slope Vegetation Garden Space View LakePartial View YN Yes Waterfront YN No

Interior Features

Appliances Dishwasher(s)DisposalMicrowave(s)Refrigerator(s)Stove(s)/Range(s) Appliances Included Dishwasher(s)Garbage DisposalMicrowave(s)Refrigerator(s)Stove(s)/Range(s) Basement None Baths Full Garage 0 Baths Full Lower 0 Baths Full Main 1 Baths Full Upper 1 Baths Half Garage 0 Baths Half Lower 0 Baths Half Main 0 Baths Half Upper 0 Baths Three Quarter Garage 0 Baths Three Quarter Lower 0 Baths Three Quarter Main 1 Baths Three Quarter Upper 0 Bedrooms Lower 0 Bedrooms Upper 4 Building Area Total 3006 Cooling Central A/CForced AirHeat Pump Cooling YN Yes Fireplace YN Yes Fireplaces Main 1 Fireplaces Total 1 Flooring Ceramic TileVinyl PlankCarpet Heating Forced AirHeat Pump Heating YN Yes Interior Features Bath Off PrimaryDouble Pane/Storm WindowDining RoomFireplaceFrench DoorsLoftSprinkler SystemVaulted Ceiling(s)Walk-In Closet(s)Walk-In PantryWater Heater Living Area 3006 Main Level Bedrooms 1 Rooms Entry Hall (Main Level) Bedroom (Main Level) Great Room (Main Level) Dining Room (Main Level) Kitchen With Eating Space (Main Level) Bathroom Three Quarter (Main Level) Primary Bedroom Bedroom Bedroom Bedroom Bathroom Full (Main Level) Bathroom Full Utility Room Bonus Room Den/Office (Main Level) Square Footage Finished 3006 Square Footage Unfinished 0

Property Features

Association Fee 350 Association Fee Frequency Annually Association Fee Includes Common Area Maintenance Association YN Yes Builder Name High Country Homes Building Information Built On Lot Building Name Enclave at the Lake Community Features CCRs Down Payment Resource YN No Energy Source ElectricNatural Gas Estimated Completion Date 2025-09-01 FIRPTAYN No Foundation Details Poured Concrete Inclusions Dishwasher(s)Garbage DisposalMicrowave(s)Refrigerator(s)Stove(s)/Range(s) Irrigation Water Rights YN No Land Lease YN No Listing Terms Cash OutConventionalFHAVA Loan Lot Number 6 New Construction Completed New Construction YN Yes Possession Closing Power Company Puget Sound Energy Power Production Type ElectricNatural Gas Property Condition Very Good Property Sub Type Single Family Residence Security Features Fully Fenced Senior Community YN No Senior Exemption No Sewer Sewer Connected Sewer Company City of Bonney Lake Site Features Fenced-FullyPatioRV ParkingSprinkler System Special Listing Conditions None Tax Annual Amount 0 Tax Year 2024 Water Company City of Bonney Lake Water Heater Location Garage Water Heater Type Tank Water Source Public Year Built Effective 2025



IDX information is provided exclusively for consumers’ personal noncommercial use, that it may not be used for any purpose other than to identify prospective properties consumers may be interested in purchasing.The listing data relating to real estate for sale on this web site comes in part from the Northwest Multiple Listing Service. Real estate listings held by brokerage firms other than NW Home Experts are marked by the "three tree" symbol; detailed information about such listings includes the names of the listing brokers. The three tree icon refers to an NWMLS listing. Data last updated 2025-11-10T14:15:00.873. The "Days on Site" data field is calculated by BoomTown and is the number of days since the listing was originally received in our system. It is not the equivalent of "Days on Market".
Based on information submitted to the MLS GRID as of 2025-11-10T14:15:00.873. All data is obtained from various sources and may not have been verified by broker or MLS GRID. Supplied Open House Information is subject to change without notice. All information should be independently reviewed and verified for accuracy. Properties may or may not be listed by the office/agent presenting the information.
 
https://bt-photos.global.ssl.fastly.net/nwmls/1280_boomver_1_2321714-1.jpg https://bt-photos.global.ssl.fastly.net/nwmls/1280_boomver_1_2321714-1.jpg https://bt-photos.global.ssl.fastly.net/nwmls/1280_boomver_1_2321714-1.jpg
Logo
NW Home Experts
3905 Martin Way E Ste A
Olympia WA, 98506
Northwest MLS logo Listing information ©2025 Northwest MLS. Listing courtesy of Berkshire Hathaway HS SSP.
Mortgage Calculator is provided by BoomTown.